Last Updated on 30.03.2021 by Катерина Дулова
Частная вилла «Высокая гора» (Fjeldhøi), спроектированная MORFEUS arkitekter, построена в 2020 году в районе Яр, недалеко от города Осло, Норвегия. Двухэтажный особняк площадью 280 квадратных метров располагается на вершине хребта с прекрасным видом на Осло-фьорд. Высокое открытое пространство обеспечивает дом большим количеством солнечного света. Вилла окружена старым сосновым лесом. Если смотреть со стороны, то кажется, будто она прячется среди верхушек вековых деревьев.

История виллы берет свое начало с 1912 года, когда на этом месте был построен дом в швейцарском стиле. Постепенно здание пришло в упадок, и идея его восстановления оказалась невыполнимой. Шале снесли, а сохранившиеся фрагменты некогда уютного дома были переданы хозяином в дар владельцам подобных строений, что позволило продлить жизнь некоторым вполне пригодным для эксплуатации предметам, среди которых двери, окна, петли.
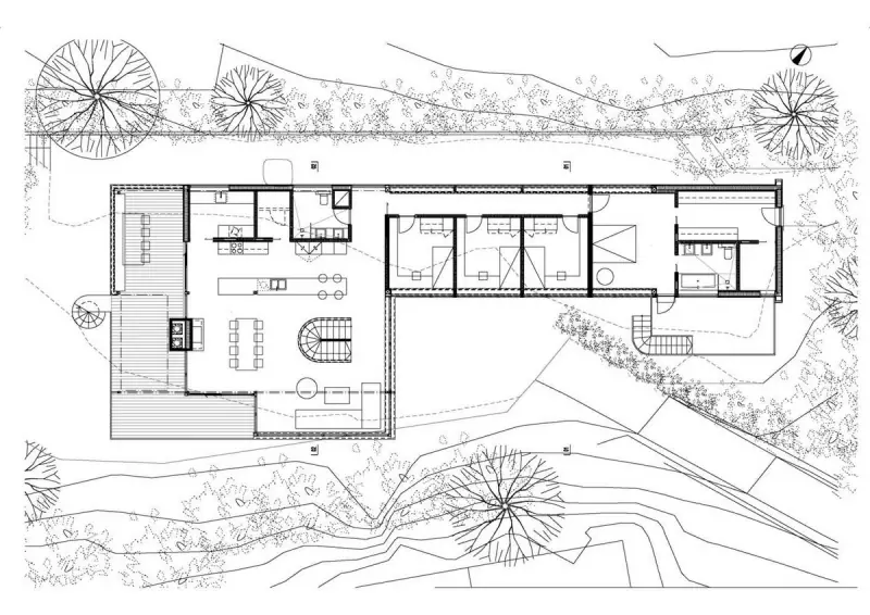
Конфигурация первого этажа нового здания совпадает с оригинальным домом на западе и бывшим навесом и курятником на востоке. На эти две части простирается объем второго этажа. Подъездная дорога к дому сохранена в прежнем положении, однако теперь над проезжей частью в 12-метровом свободном пролете находится второй этаж. Благодаря такой конструкции, создается крытая автостоянка и защищенный доступ в дом. Расположение здания позволило сохранить большую часть старого сада на западе, а также растущие вокруг виллы деревья.
Архитектурное выражение новой виллы полностью адаптировано к конкретной ситуации. Крыша приподнята вверх с востока на запад, открывая главный вид в дом и обеспечивая интерьер естественным светом. Опущенный наклон крыши с восточной стороны позволяет уменьшить высоту здания и обеспечить конфиденциальность от соседей. Некогда эта территория была почти свободной от строений, но за последние сто лет она плотно застроилась. Вилла оказалась в окружении домов, которые имеют примерно один план и высоту, благодаря чему создается красивый вид района, а также соблюдается частичная приватность для каждой собственности.
Основная конструкция здания — деревянный каркас с использованием клееного бруса и стали. На первом этаже полы выполнены из полированного бетона, в гостиной – роскошные дубовые полы. Парадная лестница имеет тактильную скульптурную форму, сделанную из древесины дуба.
Большое внимание в проекте уделено интеграции внешних и внутренних пространств. Резкий контраст температур зимой и летом, недостаток естественного света зимой требовал создания гибкой связи между интерьером и экстерьером. Интеграцию внутренних и внешних пространств обеспечивают большие веранды и террасы, расположенные в сторону сада, как на первом, так и на втором этажах. Комфортный отдых на свежем воздухе обеспечивает открытый камин на одной из террас. Наружная винтовая лестница соединяет два этажа снаружи, обеспечивая легкий доступ изнутри наружу и наоборот.






















©