Last Updated on 19.07.2021 by Катерина Дулова
Липтовский регион уже давно является популярным местом отдыха. Заказчик не был новичком в этом регионе, он долгое время владел здесь старым домом, который больше не соответствовал требованиям молодой, растущей семьи. Архитекторы начали работать с клиентом только после покупки земли в Смречанах. Хотя длинный и узкий участок имел благоприятную ориентацию с востока на запад, на южной стороне был расположен семейный дом с окнами гостиной, ориентированными на участок клиента.

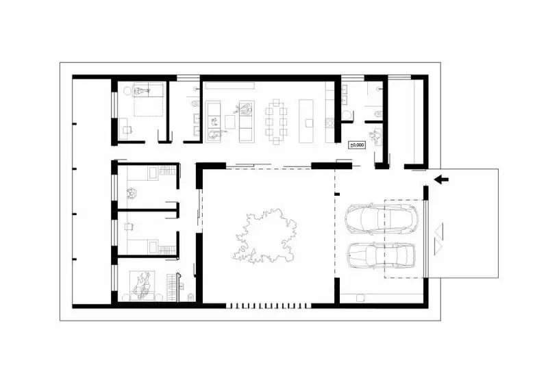
После первоначального скептицизма архитекторы подошли к проверенной пространственной концепции дома-атриума как единственного решения, которое предоставит жителям дома пользу южного солнца и в то же время отфильтрует социальную подверженность деятельности обоих соседних домов. Дом разделен на три крыла, которые ориентированы вокруг атриума. Восточное крыло состоит из навеса для машины, соединенного с главным входом в дом, и магазина спортивного инвентаря. Северное крыло включает в себя основную жилую зону (с открытой двускатной крышей), в западном крыле расположены спальни с прилегающей внешней террасой. Южная сторона атриума состоит из большой раздвижной стены, которая может полностью открыть атриум или закрыть его, чтобы создать интимный «внутренний экстерьер». Общий результат — простая, безбарьерная жизнь на первом этаже. Спокойные, линейные конструкции дополняются двускатным силуэтом крыши.






















Название: Дом выходного дня Смречаны (Weekend House Smrechany)Расположение: Смречаны, СловакияАрхитектура: Pokorny ArchitektiСтроительство: 2019Площадь участка: 1500 м2Общая площадь: 340 м2Фото: Dano Veselsky; MaxphotoБлог «Частная Архитектура»