Last Updated on 20.10.2021 by Катерина Дулова
Расположенная на относительно просторном угловом участке в жилом районе города Цукуба, эта резиденция с несколькими помещениями для занятий была спроектирована как место, где клиент может жить во время работы в другом городе. Заказчик любит играть в сквош и заниматься спортом, планирует в будущем использовать часть дома как тренажерный зал только для членов клуба, сделав краткое описание проекта аналогичным дизайну для дома и бизнеса вместе. Хотя к востоку и западу от участка есть многоквартирные и другие жилые дома, на севере он ограничен стоянкой для ресторанов, а на юге — пышным тихим парком, и, естественно, заказчик хотел воспользоваться этими видами.

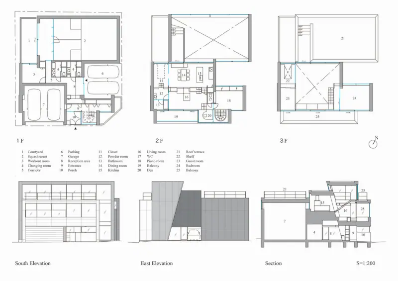
Планировка была достигнута путём определения всех комнат, требуемых клиенту, от ванных до корта для игры в сквош. Затем архитекторы скомпоновали всё по длине и высоте и, наконец, откорректировали это на основе правил отступления и других соображений, связанных с уличным пейзажем. Затем эти объёмы были объединены в единое здание с помощью четырёх всеобъемлющих рам в форме ворот, выстроенных в линию так, чтобы блокировать виды с запада и востока, но позволять ветрам и линиям обзора проходить с севера на юг. Двухуровневые этажи поднимаются по оси север-юг, а комнаты смещены слева направо. Что касается дизайна секции, то приоритетом была четкая ориентация жилой зоны на зелень парка, при этом сквош-корт, тренировочный зал, раздевалка и другие части спортивной зоны были расположены позади неё в соответствии с высотой потолка. Частные и общественные зоны резиденции чётко зонируются по этажам, но в жилой зоне, где клиент ведёт непринужденный образ жизни, потому что он живет один, комнаты объединены в единое открытое, взаимосвязанное пространство.
Кроме того, высота балкона третьего этажа была скорректирована таким образом, чтобы скрыть из виду низкую наружную электрическую линию, две дороги, граничащие с угловым участком, были использованы для разделения проходов для тренажёрного зала и жилых зон, а также был произведен ряд небольших корректировок. Четыре перекрывающих каркаса расположены так, чтобы соответствовать требованиям по отступлению углов и учесть расположение гаража, конденсаторной установки и счётчиков коммунальных услуг. Смежная жилая зона с множеством уникальных ниш. Хотя семья клиента иногда остаётся в резиденции, клиент большую часть времени живет там один, что означает, что вместо типичной проблемы дизайна дома, связанной с установлением отношений между несколькими жителями, главной проблемой была гармония между пространством и действиями и чувствами его единственного жителя. Это было тем более верно, поскольку клиент часто работает дома и, следовательно, находится в здании в течение продолжительных периодов времени. Различия в уровне пола и четыре цвета интерьера призваны внести небольшую упорядоченность в неструктурированную жизнь человека, живущего в одиночестве.

































Название: Дом в Цукубе (House in Tsukuba)Расположение: Цукуба, ЯпонияАрхитектура: Aisaka Architects AtelierСтроительство: 2020Общая площадь: 193 м2Фото: Shigeo OgawaБлог «Частная Архитектура»